構造を保持


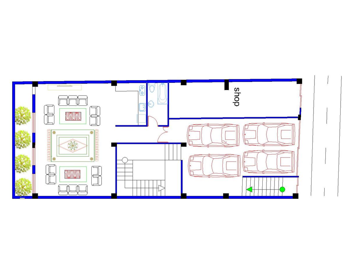
The photo captures a multi-functional ground floor, bathed in the soft, diffused light of a midday autumn sun. To the far left, a row of manicured, verdant trees with a light green, almost golden hue suggest an exterior landscaped area bordering the building's facade. Inside, the scene opens into a Scandinavian-inspired sanctuary – a living room where a pristine white carpet stretches across the floor, reflecting the light. Three plush white sofas are arranged in a conversational cluster, centered around a coffee table with a visually striking patterned inlay, all against subtly painted walls. Adjacent to this serene space, a small kitchen area is visible, its white cabinets and tiled fixtures hinting at functional elegance. Beyond the living area, a hallway leads towards the right, where a prominent staircase, rendered with distinct risers, suggests a descent of approximately 17 centimeters. Further along, the space transitions into a utilitarian area, revealing a compact bathroom with a toilet and bathtub. The most striking part of the interior, however, is the expansive garage, capable of housing four sleek, red sedans parked neatly in rows. A door connects this area to the interior, and a separate entrance marked "shop" is visible at the far right, hinting at a commercial frontage. The entire layout is enclosed by a striking blue exterior wall, with black detailing at the structural points, suggesting a modern architectural design. The composition draws the eye across the different zones, from the inviting living space to the practical garage, creating a sense of a well-organized and adaptable urban dwelling.