ReRoom

コーヒーショップ,
ミニマリスト
元画像
Source Image
アップロード:
生成画像(1088x768)
source
1.44%
Result Images
Result Images
Result Images

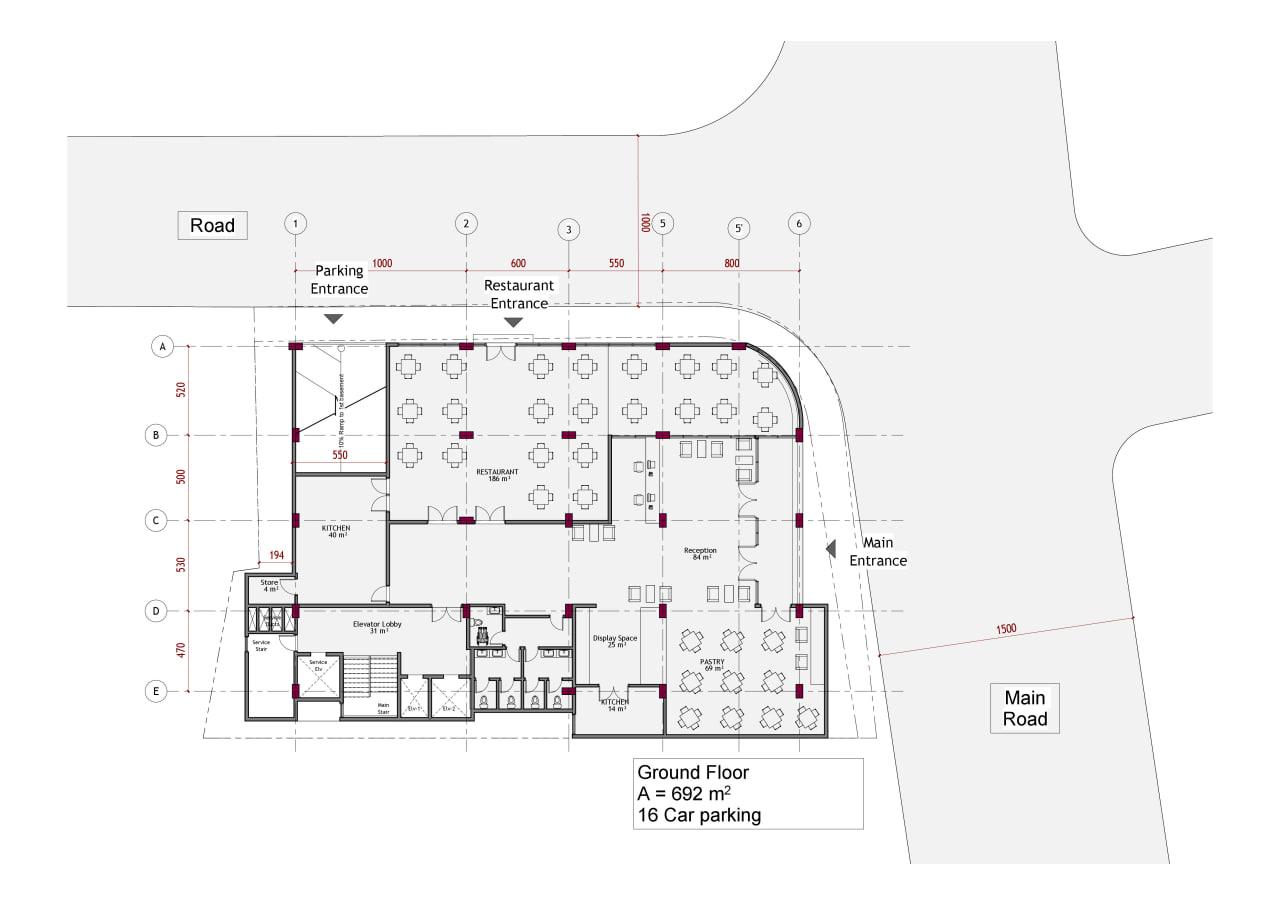
An incredibly lifelike, richly detailed, photorealistic 2D architectural rendered floor plan of a commercial cafeteria on a ground floor, presented in a flat orthographic top-down view. The scene is illuminated by clean, consistent architectural lighting, creating a professional and organized atmosphere, captured with a wide-angle lens, emphasizing the clean vector-style linework and ultra-high resolution. The layout is organized around a central structural column grid, with the main dining area floored in large-format terrazzo tiles, showcasing varied seating arrangements: minimalist rectangular communal tables with powder-coated metal chairs in light oak, small circular bistro tables accommodating two, and a long built-in banquet seating area along one wall. A sleek service zone features a long, straight service counter with a white marble top, a glass display case, and a tray-slide rail, all subtly enhanced by 2D drop shadows beneath the furniture for a sense of depth. The back-of-house comprises a strictly functional industrial kitchen with stainless steel workstations, commercial ovens, and a dishwashing area, all on non-slip terracotta tile flooring. Biophilic elements, such as indoor planter boxes, artfully separate dining zones, adding a touch of minimalism to this haven. Amenities include clean restroom facilities and a small staff office, all rendered with thick, solid black "poche" for structural walls and columns, providing a stark architectural contrast in this well-defined space.