ReRoom

リビングルーム,
現代的な優雅さ
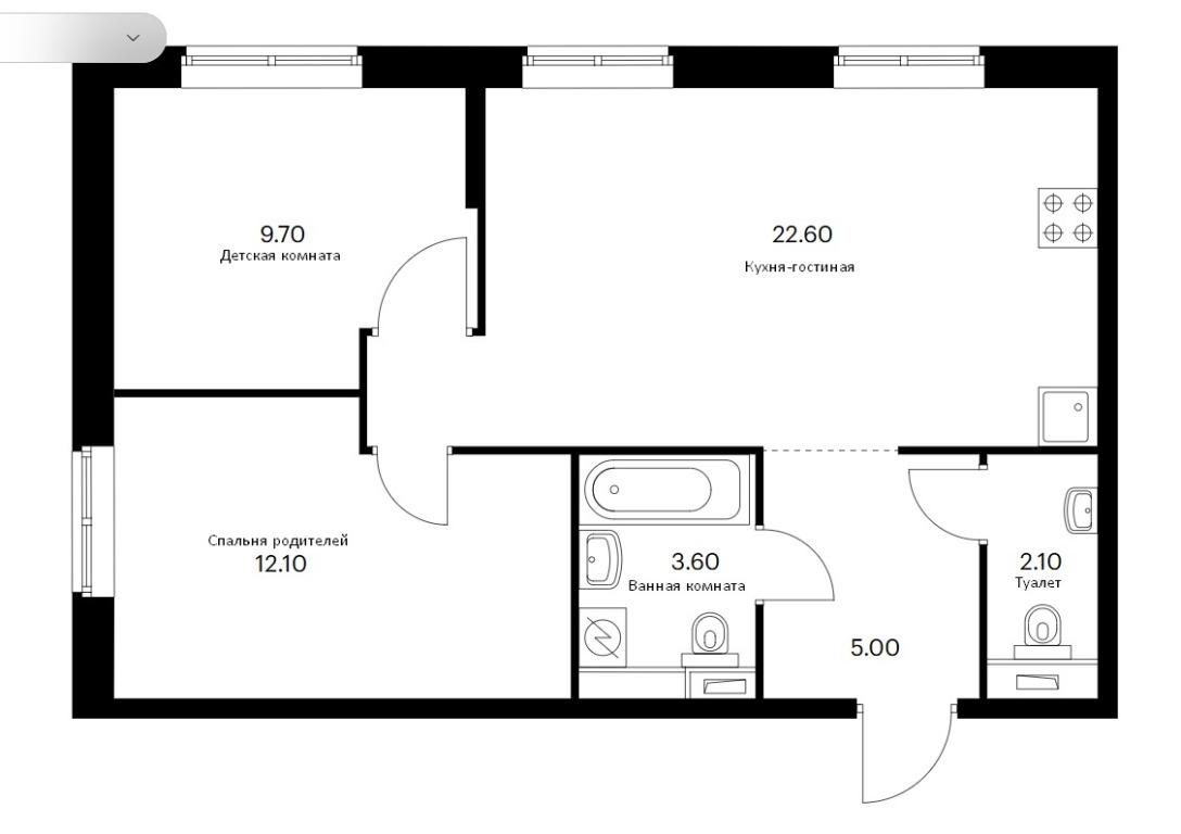
元画像
Source Image
アップロード:
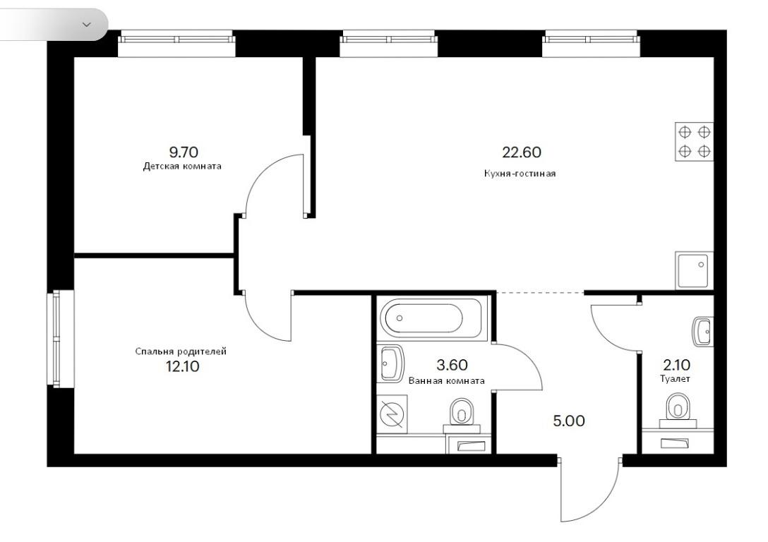
生成画像(1096x768)
source
0.86%
Result Images
Result Images
Result Images

An incredibly lifelike, richly detailed, photorealistic wide-angle interior photograph of a modern American-style open-plan apartment. The scene is illuminated by the soft, diffused light of midday on a winter's day, creating an airy yet cozy and sophisticated atmosphere. Captured with a high-end architectural photography lens, the 8k resolution emphasizes the rich textures of the deep brown laminate flooring that spans across the living-dining area and the glimpse of the kitchen. The walls are a warm silk-beige (Tikkurila Y459), contrasting beautifully with the pure white ceiling and the minimalist, flat white slab doors. Accents of deep royal blue (Tikkurila M436) are present on the lower kitchen cabinets and decorative textiles, while ochre-mustard (Tikkurila L396) velvet chairs offer a vibrant seating option in the living space. Visible through an open doorway, the nursery area features lower wall sections with vertical MDF slats in a soft yellow (Tikkurila H456). Large north-facing windows, draped with light linen curtains, allow in a gentle glow, further enhanced by the purposeful placement of slim black magnetic ceiling tracks and elegant brass pendant lights. A backsplash of grey-beige 60x30cm porcelain tiles subtly defines the kitchen area, adding a touch of contemporary elegance to the overall composition. The generous ceiling height of 2.63m contributes to the overall sense of spaciousness within this meticulously designed space.