ReRoom

リビングルーム,
モダンフュージョン
元画像
Source Image
アップロード:
生成画像(1080x768)
source
3.86%
Result Images
Result Images
Result Images

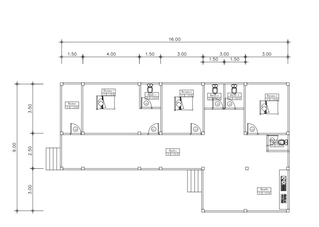
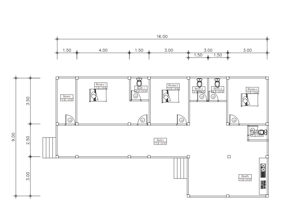
An incredibly lifelike, richly detailed, photorealistic floorplan photo of a modern fusion living area set in a sleek, urban apartment. The scene is illuminated by bright midday spring light, creating a clean, dynamic, and contemporary atmosphere with an open-concept, modular feel. Captured with a wide-angle lens, this photograph emphasizes the bold geometric lines of the architecture and the interplay between industrial-inspired metallic elements and smooth wooden surfaces. Abstract wall art adds touches of vibrant accents against a palette of black, white, and subtle grey tones. Minimal yet impactful decor includes the strategic placement of lush greenery, enhancing the overall feeling of a sophisticated, light-filled space designed for modern living. The composition is balanced, showcasing the spatial relationships within the room and hinting at the implied functionality of each zone.